Screenshot+2020-04-06+at+16.49.50.jpg
Screenshot 2020-04-14 at 11.38.52.png
Screenshot 2020-04-06 at 16.58.02.png
20191129_152314.png
20191129_152243.png
 

Co. KILDARE

Status:              Under Construction

Location:          Co. Kildare

 

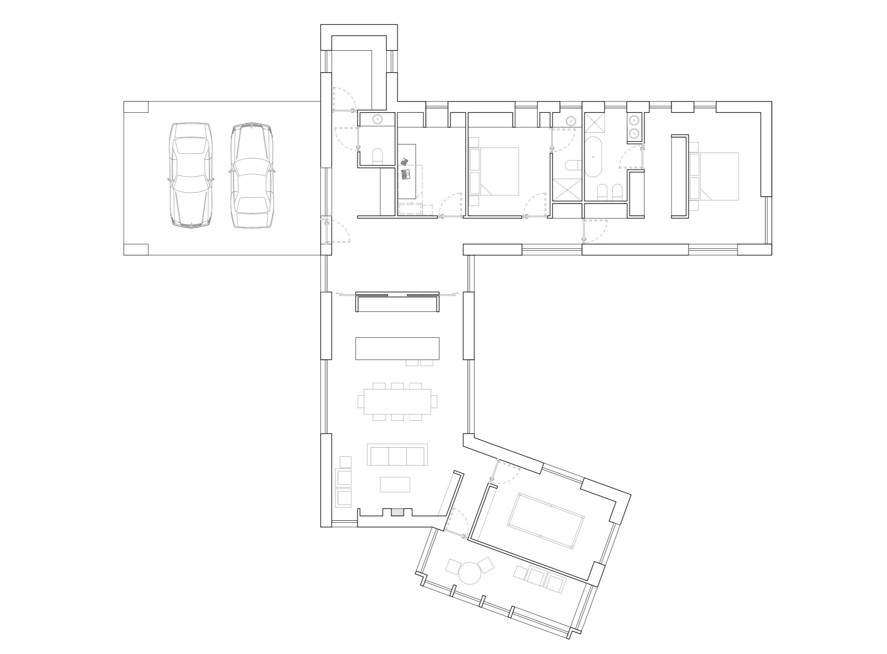
The significance of setting was the principal driver for this project. This new rural house sits behind a copse of trees on a secondary road, visible only when the trees have shed their leaves. It is designed as a contemporary response to the low, flat landscape around it, drawing inspiration from traditional agricultural structures in its immediate context. Aiming to respond appropriately to the site by making the most of natural light for various tasks at different times of day, the working zones are oriented north with the bedrooms facing east. The south and west facades open up towards the views and light. The materials (light brick, render and slate) and proportions of openings through the external wall reinforce this concept of enclosure to the Northerly aspect and openness to the south. Following a complex planning process, the detailed design phase of the project has been completed, with works to start on site in the coming months.

  

Contractor:       JJC Contracting

Photography:    N/A